Miguel Mila’s House Renovation
Barcelona
2025
This renovation reimagines the home as a living tribute to Miquel Milá's design principles, where every space is intentionally crafted to fulfill both form and function. Just as Milá's creations serve specific purposes with simplicity and elegance, the house becomes a reflection of his philosophy, blending practicality, craftsmanship, and enduring beauty.
    Client     
Miquel Milá is a Spanish designer known for his minimalist yet functional creations. A pioneer of modern design in Spain, his work reflects a deep connection to craftsmanship, nature, and timeless simplicity.
Personal Life: Milá is married with children and grandchildren. His family and love for nature inspire his designs.
Make It
Look and Feel
Blends Miquel Milà’s love of natural materials, workmanship, and Mediterranean history with his famous lighting.
- Maintains historical elements while incorporating sleek, contemporary elements, demonstrating a conversation between the past and present.
- Celebrates handmade artistry and imperfection by showcasing natural materials like wood, stone, and terracotta.
- Evokes the calm and cosiness of the Mediterranean by using earthy hues and marine blues.
A “less is more” mentality ensures that every detail is warm, simple, and elegantly ageless.
Make It
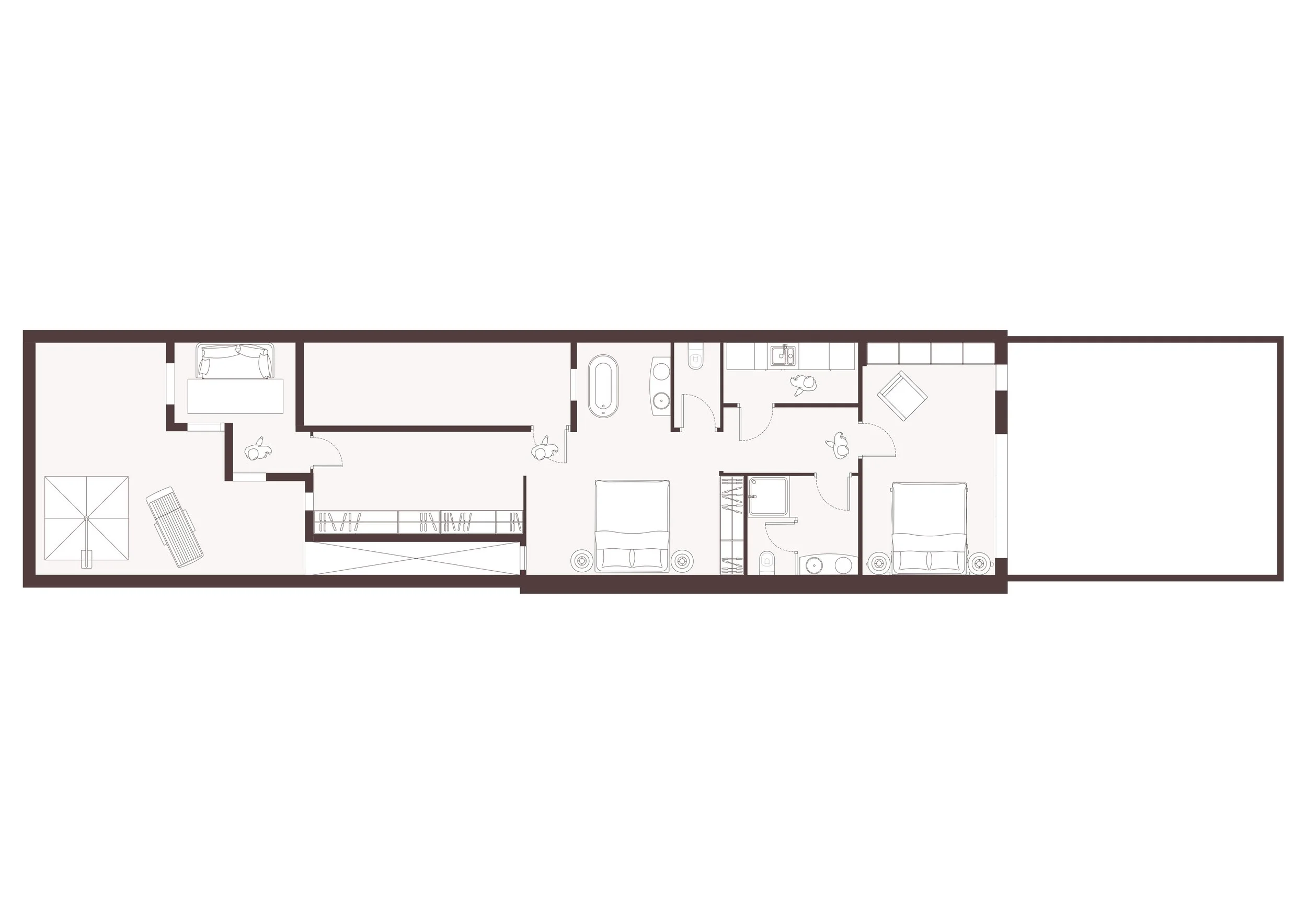
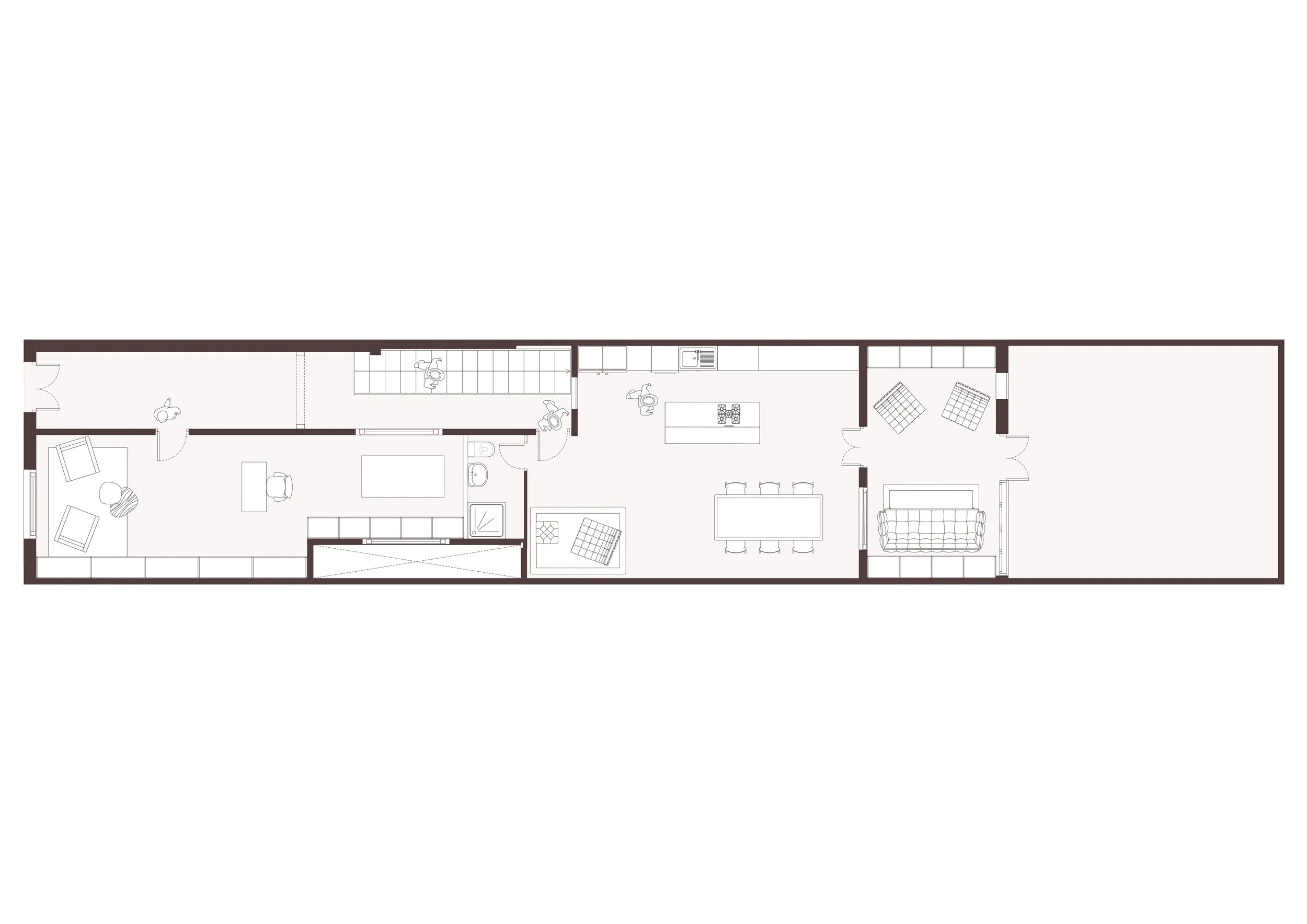
Functional Core
Miquel Milá's minimalist and practical philosophy, in which form and function coexist together, is represented in this renovation. A private, peaceful retreat is provided on the second floor, while the first floor is an open, sociable area for connecting.
Natural materials, timeless design, and a connection to nature create a harmonious balance between practicality and serenity
Make It